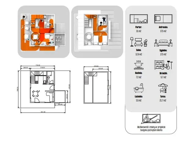
Cottage

Wprowadzenie do naszego projektu domu

Ten projekt jest kwintesencją naszej filozofii: połączenia zrównoważonej innowacji z ponadczasowym designem. Od samego początku naszym celem było stworzenie domu, który nie tylko spełnia współczesne standardy komfortu i funkcjonalności, ale również wyznacza nowe kierunki w ekologicznym budownictwie.

Dom został zaprojektowany z troską zarówno o ludzi, jak i o środowisko. Dzięki wykorzystaniu materiałów z odzysku i surowców odnawialnych, w połączeniu z nowoczesną technologią prefabrykacji, udało nam się zminimalizować ślad węglowy bez kompromisów w jakości. Każdy detal świadczy o rzemiośle  od czystych linii architektonicznych po ciepłe, naturalne wykończenia, które nadają przestrzeni wyjątkowy charakter.

To, co naprawdę wyróżnia ten projekt, to równowaga: dom praktyczny, a zarazem elegancki; trwały, a jednocześnie lekki; nowoczesny, a jednocześnie bliski człowiekowi. To coś więcej niż budynek  to przestrzeń do życia, która inspiruje, dopasowuje się i trwa.